El Campello:
Traumgrundstück am Meer - Meerblick & genehmigter Villenbau
Objekt-Nr.: FV-JS6026










QR-Code










Grundstück ca.:
723 m²
Preis:
255.000 €
WIR BITTEN UM IHR VERSTÄNDNIS:
ALLE ANFRAGEN OHNE GÜLTIGE TELEFONNUMMER ODER
RICHTIGE MAILADRESSE WERDEN GELÖSCHT.
ALLE ANDEREN ANFRAGEN MIT VOLLSTÄNDIGEN
KONTAKTDATEN WERDEN INNERHALB VON 24 STUNDEN BEARBEITET.
BITTE ACHTEN SIE AUCH AUF UNSERE MAILS AN SIE, DIESE KÖNNEN DURCHAUS AUCH IN IHREM SPAM-FILTER LANDEN.
Lebensqualität am Meer - Ihr Grundstück mit Zukunft
Dieses urbane Grundstück von 723 m² bietet die seltene Gelegenheit, nur 200 Meter vom Meer entfernt zu wohnen. Von der ersten Etage genießen Sie einen fantastischen Meerblick - ein tägliches Stück mediterranes Lebensgefühl.
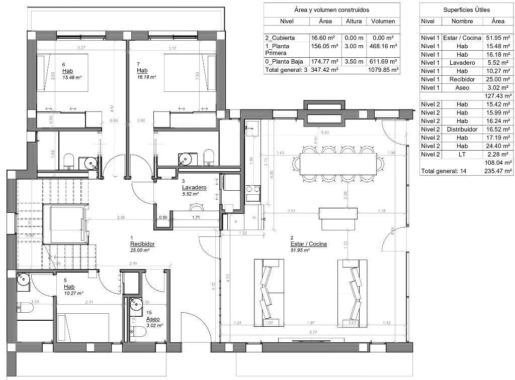
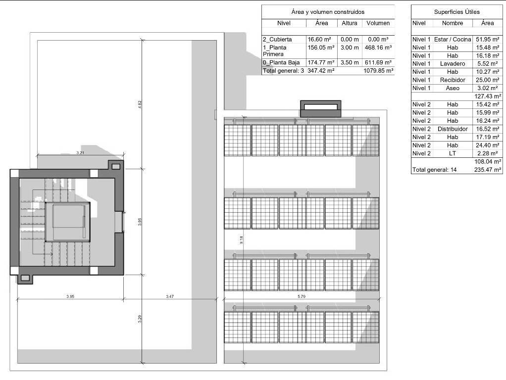
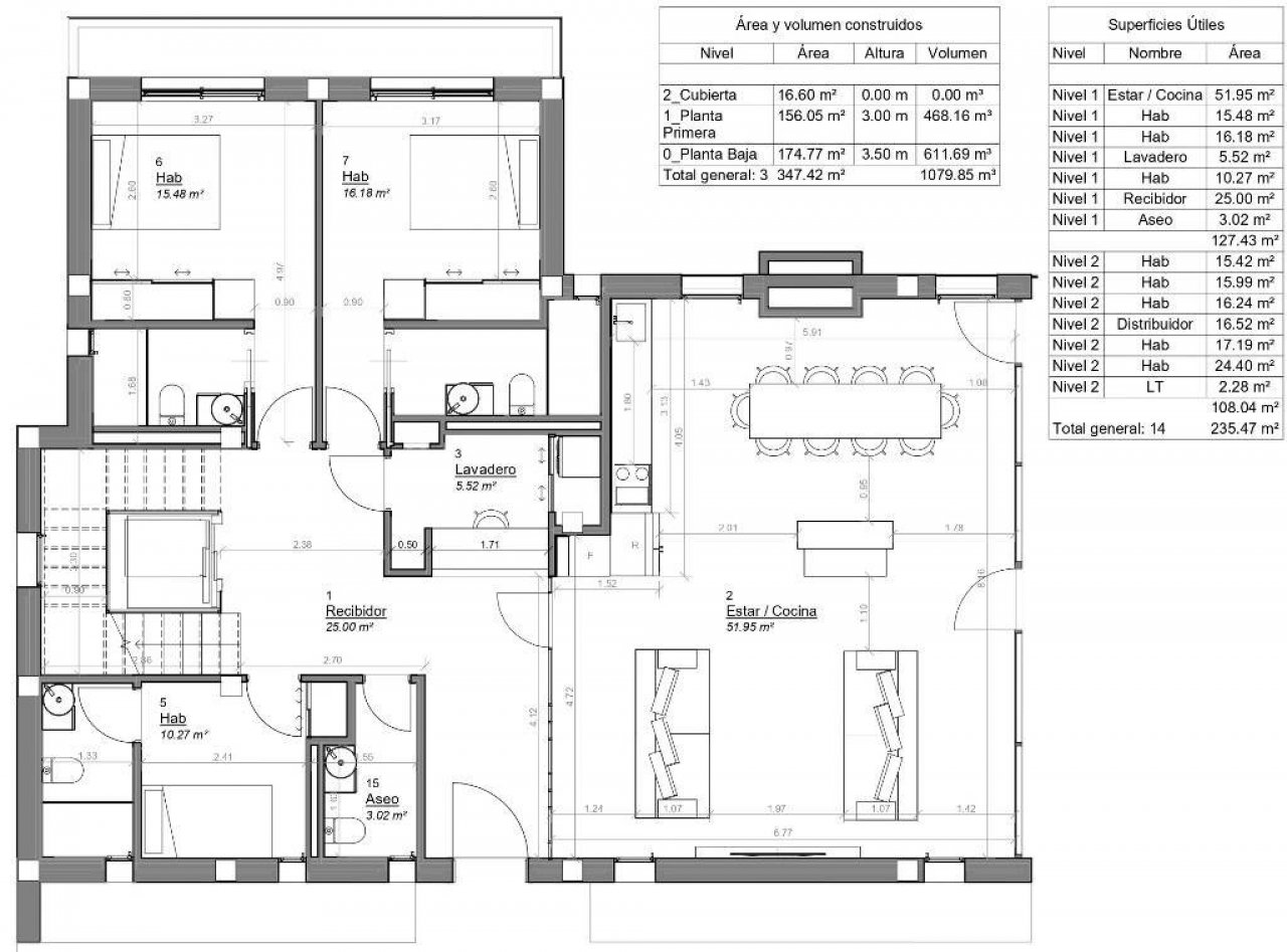
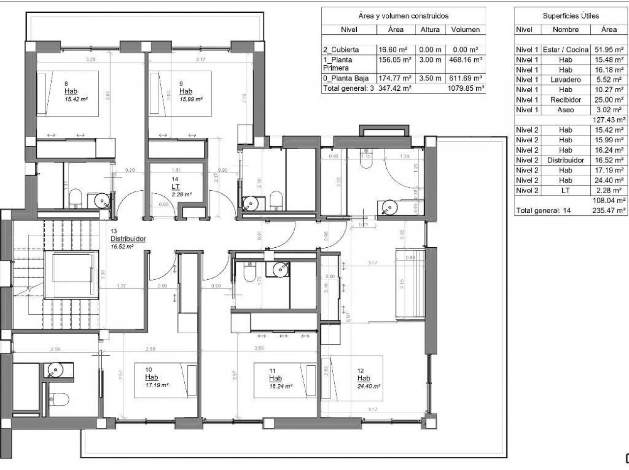
Für das Grundstück liegt bereits ein genehmigtes Projekt für eine moderne Villa mit 347 m² Wohnfläche vor. Die Lizenzgebühren sind bezahlt, und die endgültige Baugenehmigung wird in wenigen Monaten erwartet - so können Sie ohne Verzögerung mit der Verwirklichung Ihres Traumhauses beginnen.
Die Lage überzeugt nicht nur durch die Nähe zum Meer, sondern auch durch eine hervorragende Infrastruktur:…
Strand: 200 m
TRAM-Haltestelle "Cala Piteres": 550 m
El Campello: ca. 6 km
Alicante Zentrum: ca. 20 km
Flughafen Alicante: ca. 33 km
Ein Zuhause, das Natur, Meerblick und beste Anbindung perfekt vereint - für alle, die Wert auf Lebensqualität, Komfort und mediterranes Flair legen.
El Campello - Entspanntes Leben zwischen Strand & Stadt
Die Villa befindet sich in El Campello, einem charmanten Küstenort nur 13 km nördlich von Alicante. Anders als viele touristisch stark frequentierte Orte an der Costa Blanca, bietet El Campello eine angenehm ruhige Atmosphäre, ideal für Menschen, die Entspannung suchen, ohne auf Annehmlichkeiten verzichten zu müssen.
Ein Highlight ist der 6 km lange Sandstrand, begleitet von einer schönen Strandpromenade und einem gepflegten Yachthafen. Hier genießen Sie das Leben am Meer - ohne Massentourismus, aber mit allem, was den mediterranen Lebensstil ausmacht.
Nutzungsart: Wohnen
Ausblick: Meerblick
Provisionspflichtig: nein
Die vom Käufer zu tragende Maklercourtage beträgt 3% inklusive Mehrwertsteuer vom Kaufpreis. Die Courtage wird mit Unterzeichnung des notariellen Kaufvertrags fällig. Der Verkäufer trägt eine Courtage in gleicher Höhe.
Die von uns gemachten Informationen beruhen auf Angaben des Verkäufers bzw. der Verkäuferin. Für die Richtigkeit und Vollständigkeit der Angaben kann keine Gewähr bzw. Haftung übernommen werden. Ein Zwischenverkauf und Irrtümer sind vorbehalten.
AUF WUNSCH empfehlen wir Ihnen gern einen Finanzierungsexperten.
Wir weisen auf unsere Allgemeinen Geschäftsbedingungen hin. Durch weitere Inanspruchnahme unserer Leistungen erklären Sie die Kenntnis und Ihr Einverständnis.
Das könnte Ihnen auch gefallen
03560 El Campello
Alicante
Comunidad Valenciana


















































































